7 MAISONS NEUVES AVEC JARDIN ET PARKING À CALONGE
Description
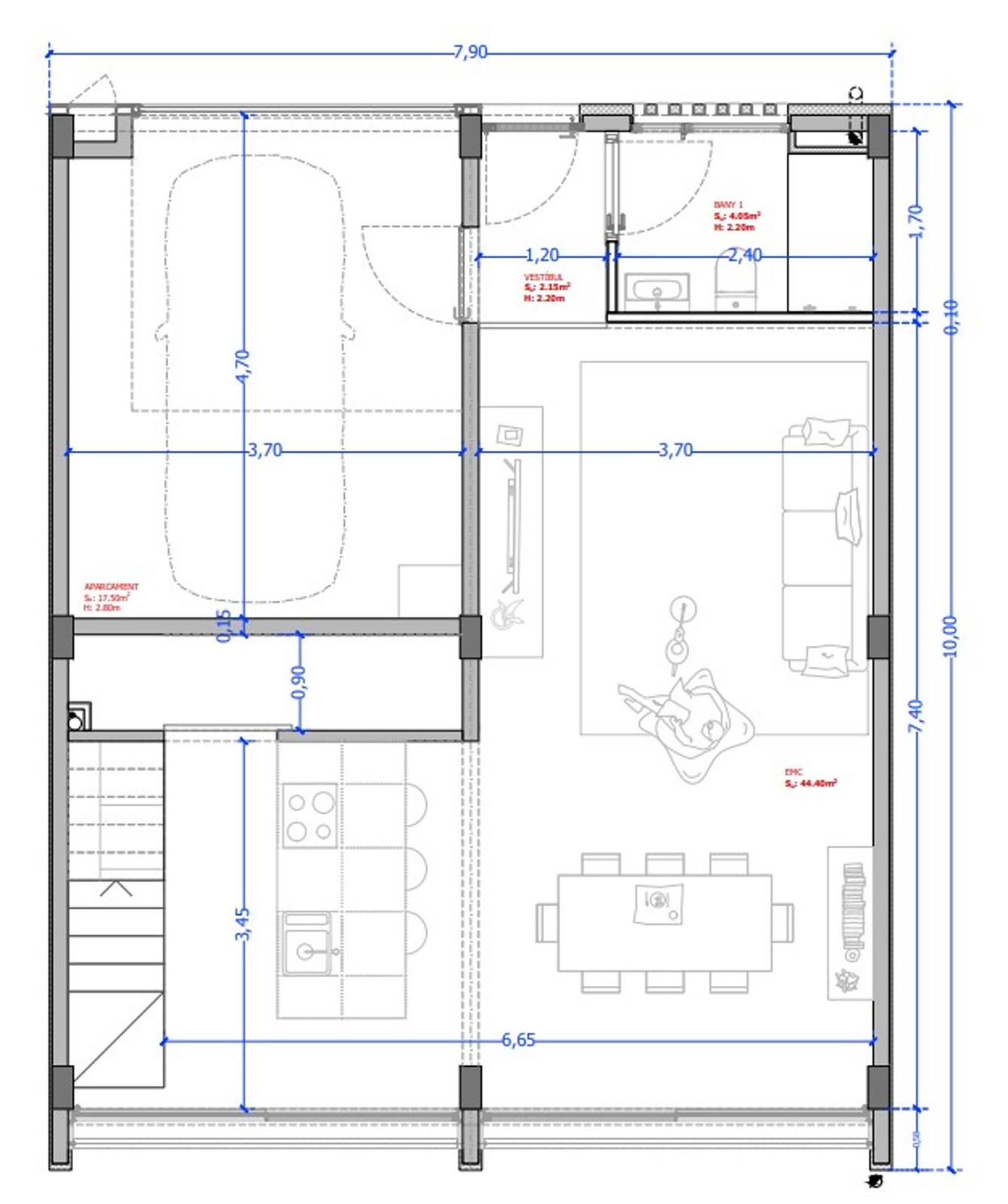
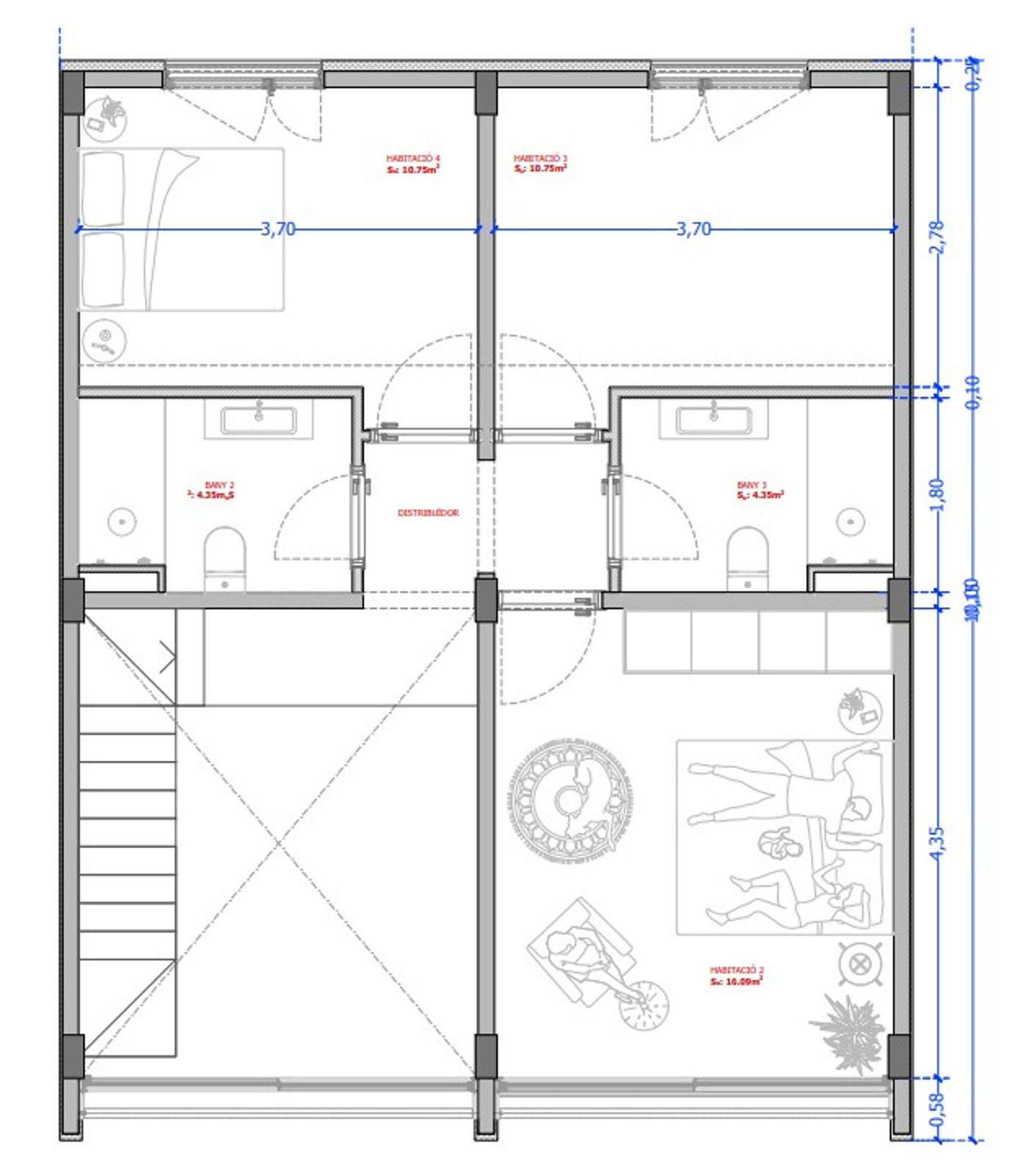
Votre nouvelle maison à Calonge est plus proche que jamais ! Avec les TRAVAUX INITIÉS, ce développement exclusif de 7 maisons neuves progresse à un rythme soutenu. Cette propriété dispose de 5 chambres, 3 salles de bains, d'un jardin privé avec piscine et d'une place de parking, le tout pensé pour offrir un confort optimal et une excellente qualité de vie.
La livraison est prévue pour le premier trimestre 2027, ce qui vous laisse le temps de planifier votre déménagement en toute sérénité. Situé dans un quartier calme et bien desservi, vous aurez la possibilité de profiter d'un environnement naturel et de toutes les commodités dont vous avez besoin à portée de main.
Acheter sur plan vous permet de personnaliser la maison selon vos envies.
Préférez-vous les quatre chambres à l'étage et un espace de vie plus spacieux au rez-de-chaussée ? Deux salles de bains à l'étage ? Une piscine dans votre jardin ?
Tout est possible.
Contactez-nous pour plus d'informations et découvrez toutes les options de personnalisation disponibles.
Ne manquez pas l'occasion de vivre dans un lieu unique ! Réservez dès maintenant et commencez à imaginer votre avenir dans cette belle maison !
Promu par : Promociones Molina
Commercialisé par : Corredor Mató & Urbenia Serveis Immobiliaris
Prix de vente
Conditions de ce tarif
Politique d'annulation
Demande d'information
Si vous souhaitez plus d'informations sur ce bien, merci de remplir le formulaire :
Caractéristiques
Type |
Maison mitoyenne |
|---|---|
Ville |
Calonge |
Zone |
Costa Brava |
Année de construction |
2025 |
Chambres |
5 |
Surface au sol |
140 m2 |
Surface du terrain |
158 m2 |
Salles de bains |
3 |
Garage |
Oui |
Vues |
Vues de montagne |
Distance à la plage |
1,5km |
Evaluation énergétique
