7 CASES D'OBRA NOVA AMB JARDÍ I PARKING A CALONGE
Descripció
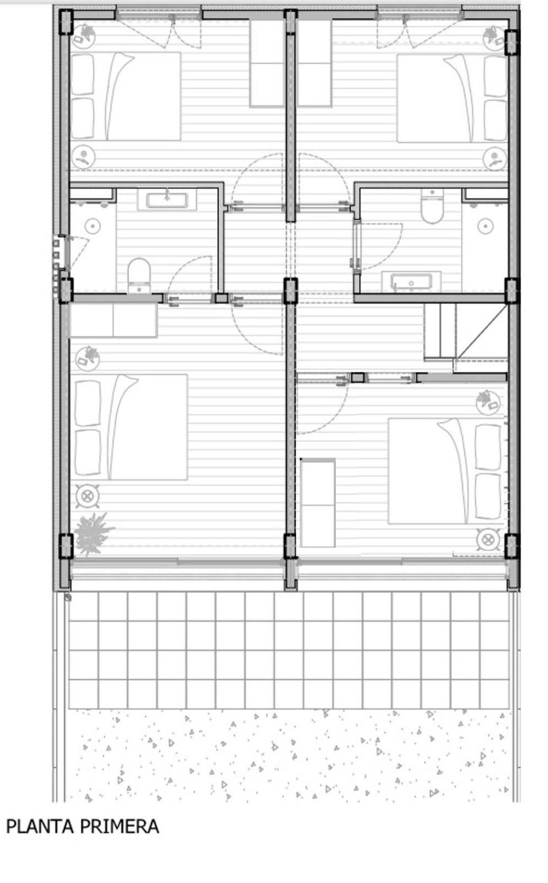
La teva nova llar a la Costa Brava és més a prop que mai! Amb les OBRES INICIADES, aquesta exclusiva promoció a Calonge ofereix 7 cases d'obra nova en una primera fase que avança a pas ferm. Aquest habitatge compta amb 5 habitacions, 3 banys, jardí privat i plaça de pàrquing, tot pensat per oferir-te el màxim confort i qualitat de vida.
El lliurament està previst per al primer trimestre del 2027, cosa que et brinda temps per planificar amb tranquil·litat la mudança a la teva nova llar. Ubicades a la bonica població de Calonge a tan sols 5 minuts de la platja, gaudireu d'un entorn natural únic, amb la bellesa de la Costa Brava al vostre abast.
Comprar sobre plànol et permet personalitzar la casa al teu gust.
Prefereixes les quatre habitacions a la planta superior i ampliar tota la zona de dia a la planta baixa? Vols dos banys a la part de dalt? Una piscina al teu jardí?
Tot és possible. Consulta'ns per a més informació i descobreix totes les opcions de personalització disponibles.
No perdis l'oportunitat de viure a un lloc únic! Reserva ara i comença a imaginar el teu futur a aquesta bonica casa!
Promociona: Promocions Molina
Comercialitza: Corredor Mató & Urbenia Serveis Immobiliaris
Preu de Venda
Condicions d'aquesta tarifa
Condicions de cancel·lació
Sol·licitar informació
Si desitges més informació sobre aquesta propietat, si us plau, emplena el formulari:
Característiques
Tipus |
Casa adossada |
|---|---|
Població |
Calonge |
Zona |
Costa Brava |
Any de construcció |
2025 |
Habitacions |
5 |
Metres de l'immoble |
140 m2 |
Superfície de la parcel·la |
158 m2 |
Banys |
3 |
Garatge |
Si |
Vistes |
A la muntanya |
Distància al mar |
1,5km |
Qualificació energètica
