Élégante villa moderne avec piscine et jardin à Valldoreix
Description
Il y a des maisons que l'on comprend en regardant les plans.
Et il y en a d'autres que l'on comprend en s'imaginant un dimanche matin, pieds nus, les portes ouvertes sur le jardin.
Celle-ci en fait partie.
Située dans un quartier résidentiel calme de Valldoreix, entourée de nature et à proximité du club de tennis, cette villa individuelle allie design contemporain, confort au quotidien et une manière de vivre plus consciente et efficace.
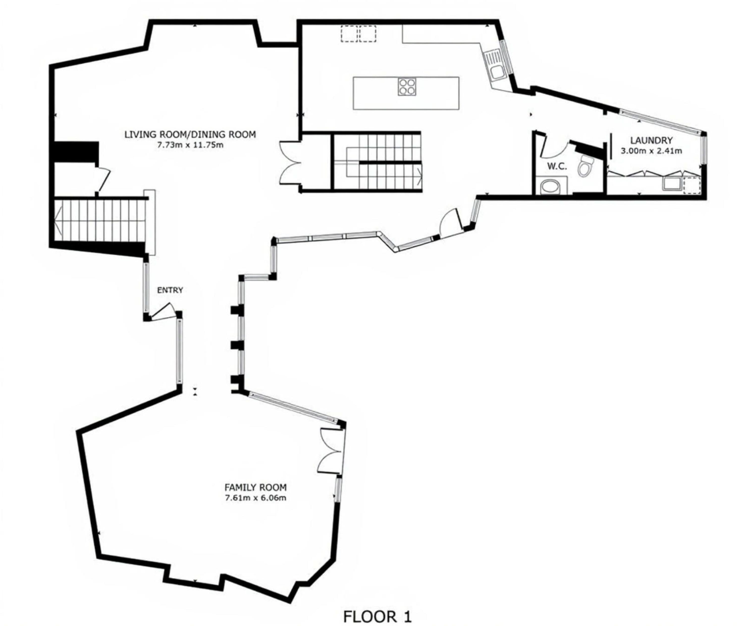
La maison s'organise en forme de U, s'ouvrant sur le jardin. Toute la zone de jour se développe sur un seul niveau, entourée de grandes baies vitrées qui apportent une belle luminosité naturelle et créent une connexion fluide entre l'intérieur et l'extérieur. Ici, chaque espace a sa raison d'être.
Le salon-salle à manger, réparti en deux ambiances, et la cuisine ouverte avec espace repas donnent directement sur le porche et la piscine. Le porche vitré et climatisé permet de profiter de l'extérieur toute l'année, été comme hiver.
Le jardin est conçu pour le plaisir : piscine d'eau salée chauffée, espace barbecue, abri à bois et toilettes extérieures. Des détails pratiques qui améliorent réellement le quotidien.
À l'étage se trouve la zone nuit. Deux bureaux — dont un avec salle de bain complète — offrent des espaces idéaux pour le télétravail. La suite parentale dispose d'une terrasse privée avec vue sur la piscine et l'environnement naturel de Collserola. De l'autre côté, deux chambres doubles et une suite supplémentaire complètent une distribution confortable et harmonieuse.
La maison est équipée de panneaux solaires avec système de batteries, permettant une consommation électrique quasi nulle. Elle bénéficie également du chauffage par le sol, de la climatisation, de l'énergie solaire pour l'eau chaude sanitaire, le chauffage et la piscine, d'une cheminée, d'un système d'osmose et d'une piscine d'eau salée chauffée.
Du confort, bien sûr.
Mais aussi de la sérénité.
Le niveau inférieur comprend un garage pour quatre véhicules, une salle des machines et un espace de rangement.
Il ne s'agit pas seulement de surface.
Il s'agit de la façon dont vous souhaitez y vivre.
Prix de vente
Conditions de ce tarif
Politique d'annulation
Demande d'information
Si vous souhaitez plus d'informations sur ce bien, merci de remplir le formulaire :
Caractéristiques
Type |
Villa |
|---|---|
Ville |
Sant Cugat del Vallès |
Zone |
Barcelona |
Année de construction |
2008 |
Chambres |
6 |
Surface au sol |
607 m2 |
Surface du terrain |
1152 m2 |
Salles de bains |
4 |
Garage |
Oui |
Piscine |
Piscine privée |
Vues |
Vues de montagne |
Evaluation énergétique
